| 《山乡田园 260平米二层轻钢别墅》 |
| 发布时间:2021-04-09 12:06:42 | 浏览次数: |
【3D外观效果图】 首先,把业主的构想和对住宅建成后的意像清晰地描绘出来是我们公司设计部的首要工作。就此,我公司负责 该项目的两名设计师与业主的进行了充分沟通,最终在两天之内完 成 了获得业主认可的3D外观效果图。从其中两 张就可以观其全貌。
▲山乡田园260平米二层轻钢龙骨结构别墅 南立面3D效果
▲山乡田园260平米二层轻钢龙骨结构别墅 北立面3D效果
建筑外观:建筑面积为260平米,总高9.3米。二层住宅楼为业主家人提供了足够的居住和休闲空间;
一层:门廊居中,两侧连廊相通,为家庭成员提供了户外休闲的地方; 二层:东南角有露台,可以阅风景,也可以畅享下午茶; 屋面:组合式坡面设计、脊谷起伏,造型美观,而且排水更轻松; 色调:墙面 米黄色,屋面深蓝色。
建筑钢结构:应用埃菲尔钢结构公司双面热镀铝锌冷弯薄壁轻钢龙骨 埃菲尔钢结构公司轻钢龙骨抗拉强度和屈服强度550MPa,是低层建筑如别墅住宅、民宿、乡村自建房屋、商务 办公、展厅、景观房、公共设施等优良的框架基础材料。 其表面防腐处理为双面热镀铝锌镀层,耐候性强,抗腐蚀性能高,可广泛应用于乡村、城镇房产、厂矿企业办公 商务区、商业经营、公共事务等人文区域,及平原、山川、草原、盆地、邻水、滨海、地震带等不同地理环境中建 筑的机理。
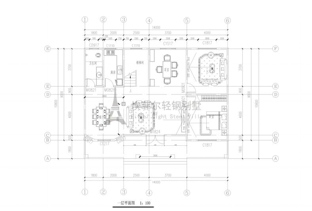
【平面户型图】
▲ 第1层 户型平面图 (主要空间包括1客厅、1卧室、1餐厅、1厨房、1茶室、1KTV房、1卫生间、1楼梯间)
▲ 第2层 户型平面图 (主要空间包括3卧室、1卫生间、1楼梯间、1露台)
【建筑立面图】
▲ 南立面图
▲ 北立面图
【建造工地 实景拍摄】
▲ 基础制作中,于此同时我公司生产的轻钢龙骨也制备中,做好了入场时点计划;
▲ 建造二层轻钢住宅的基础基本成形;
▲ 埃菲尔轻钢龙骨运抵,照片中所见为部分龙骨构件;
▲ 第1层 外墙和内部空间隔墙龙骨框架组装;
▲ 第2层 外墙和内部空间隔墙、屋面,屋面龙骨框架组装;
▲ 组装轻钢龙骨(热镀铝锌) ,二层结构龙骨主体建设完成。
业主选择轻钢建别墅,是基于轻钢龙骨的五大优势 1. 别墅专用镀铝锌轻钢龙骨的具有更长的耐腐蚀性能,大大优于普通镀锌钢材,同时荷载大,抗拉强度和屈服强度 完全胜任多层别墅的建造; 2. 所有的结构龙骨通过我公司的专业轻钢别墅建筑软件设计,在经过我公司的精密设备加工出来; 3. 由于龙骨自身轻质化,只需简单的工具即可轻松快速地在现场组装,而无需重型机械如起重机、混凝土搅拌机、供 水,极大节省人工和建造成本; 4. 出厂提供配套的连接辅料和紧固件; 5. 建筑主体结构达到9级抗震烈度,可以经受12级强风的猛烈侵袭。正是由于业主所在的四川部分区域属于地震带, 所以能将地震预设烈度提高到更高的水平轻钢别墅成为业主的首选结构。
▲ 施工第6天该栋轻钢别墅住宅第1层楼墙体内外的欧松板铺装完成。脚手架临墙而立逐层增高,为安全施工提供 了稳固平台,第2楼层的欧松板铺装工作即将展开,有序推进。
【二层轻钢别墅落成】
▲ 傍晚时分,华灯初上。坐在连廊的藤椅上,在此小憩,等待晚餐。
【室内装修】 业主按照自己的风格进行室内装修
▲ 餐厅 餐厅配以质感落地窗帘,吊灯,背景墙中间挂着水墨丹青,一副书法佳作,一张八人台餐桌,彰显优雅的 餐厅风格;
▲ 家庭酒吧 室内一楼走廊一侧是简单的家庭酒吧,可以在此与亲朋好友畅谈闲聊,品享美酒;
▲ 电视厅 厅内电视柜色泽淡雅,与墙体颜色相近相容,毫无突兀感。电视柜前U字形围合式的沙发摆放,营造出紧 凑温馨的交流空间,让 家人贴的更近。墙饰简洁明快,福字带来福气满,中国结上中国红, 一家人永结同心、家和 万事兴的寓意不言自明;
▲ 书房 置身书房中,映入眼帘的是窗外的山丘,郁郁葱葱。侧向推开窗户,新鲜气息顿时充盈整个房间;
▲ 露台 站在二楼露台上的居家休闲区,可一览乡间景物。不远处,几间屋舍相望,傍宅园田数十亩,阡陌交通, 环绕其间。待到芳草茵茵,瓜果飘香,定是一片沁人心脾的盎然景象。
【建造一线视频】
轻钢龙骨 构架局部预组装
致新老顾客: 请继续浏览我公司其他案例进展信息,我们敬候您来电垂询与莅临指导,请拨打15081199127与我们沟通您的需求,感谢您的关注和支持!
|
| 上一篇:《房地产公司1:1样板房》 轻钢建筑主体 下一篇:《润江一号院户型展示样板》 |











