| 《二层花木禅房 北城秀涵江南韵》 |
| 发布时间:2021-04-10 12:13:05 | 浏览次数: |
▲河北辛集市二层禅房(轻钢结构) ,项目实景
【项目简述】
建筑风格:现代徽派建筑 层 数:二层 建筑面积:165平方米 建筑内核:埃菲尔镀铝锌轻钢龙骨金属框架结构 建筑外观:白墙黛瓦,真石漆外墙装饰
二层禅房呈徽派建筑格调,白墙黛瓦,不俗不艳,擘画水墨丹青,如临江南水乡;与院中周内屋舍相辅 相成,不争不喧,心素如简。
远观独立于依依翠柳中,色泽清新,淡雅脱俗,远离尘嚣;置身其中览经参禅,悟道明心。其院址处于 城中一隅,不在深山,如步幽谷,观天光悦影,味花草浮香。豁达随缘,洒脱自然,实修身养性、增福增慧 之所。
今禅房新成,唯感欣慰。言及佛寺建筑,殿阁房舍,传统多取材自木石砖瓦,纵有古刹,数几能保全于 乱世战火?屡经重修复建者,幸绵延于世。时至今日,本建筑二层独栋,全新矗立,用料中西合璧,主体钢 质钢连,能荷其载,可负其重。新姿新貌不变其本,和平盛世弘扬其道。此为我方设计施用又一力作。
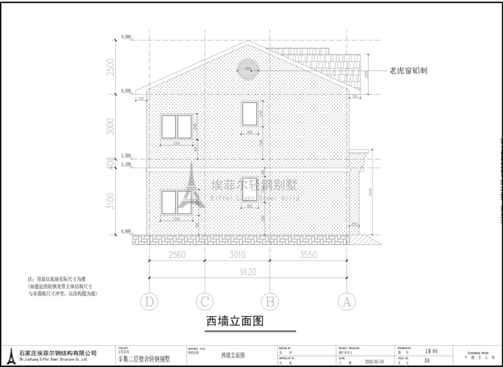
【建筑立面图】
【建筑实况】
■项目进度1
■项目进度2
■项目进度3
▲二层楼面热镀铝锌轻钢龙骨组装;
▲二层楼面热镀铝锌轻钢龙骨组装;
▲二层墙体、内部空间热镀铝锌轻钢龙骨组装;
▲二层外立面热镀铝锌轻钢龙骨组装;
▲屋面热镀铝锌轻钢龙骨组装;
▲内部楼梯间热镀铝锌轻钢龙骨组装;
【一线视频】 ▲ 轻钢龙骨 构架局部预组装
【建成入住】
致新老顾客: 请继续浏览我公司其他案例进展信息,我们敬候您来电垂询与莅临指导,请拨打15081199127与我们沟通您的需求,感谢您的关注和支持!
|
| 上一篇:《润江一号院户型展示样板》 下一篇:《燕山原乡小镇 二层轻钢民居》 |

















